物件の特徴
主な設備
公営水道
下水道
都市ガス
給湯
食器洗浄乾燥機
カウンターキッチン
システムキッチン
バス
オートバス
追焚機能
浴室乾燥機
浴室に窓
トイレ2箇所
室内洗濯機置場
洗髪洗面化粧台
洗面所独立
リビング階段
モニタ付インターホン
火災警報器/報知機
LDK18畳以上
2面採光
全室フローリング
クローゼット2箇所
ウォークインクローゼット2箇所
床下収納
全居室収納
シューズインクローク
主な特徴
小学校徒歩10分以内
南側道路面す
スーパーが近い
2階建
フラット35Sに対応
=========================
◇飯田小学校:徒歩約7分
◇大曽根中学校:徒歩約15分
◇アオキスーパー上飯田店:徒歩約4分
◇北病院:徒歩約5分
◇上飯田南公園:徒歩約3分
◆家族とコミュニケーションの取れるリビングイン階段を採用
◆日用品もしまえるシューズインクローク
◆2WICでお部屋すっきり
=========================
\見るだけ聞くだけOK/
資金効率が良くなるローンの組み方教えます。
ネット未公開、水面下情報多数あります。
ほかのページで気になる物件もご相談ください。
物件概要
| 価格 | 4,999万円 | 間取り | 4LDK |
|---|---|---|---|
| 物件種別 | 新築一戸建て | ||
| 所在地 | 愛知県名古屋市北区上飯田南町2丁目 1号棟 | ||
| アクセス | 名古屋市上飯田線『上飯田』 徒歩6分 (約480m) 名古屋市上飯田線『上飯田』 徒歩6分 (約480m) 名古屋市営バス『「上飯田」停』 徒歩3分 (約172m) |
||
| 建物面積 | 97.99㎡ | 駐車場 | あり 普通:2台 |
| 築年月 | 2026年(令和8年)10月予定 | 建築確認 | 第KS126-0420-53821号 |
| 建物構造 | 木造 2階建 | 工法 | |
| 主要採光 | バルコニー | ||
| 保証・評価 | |||
| 分譲情報 | |||
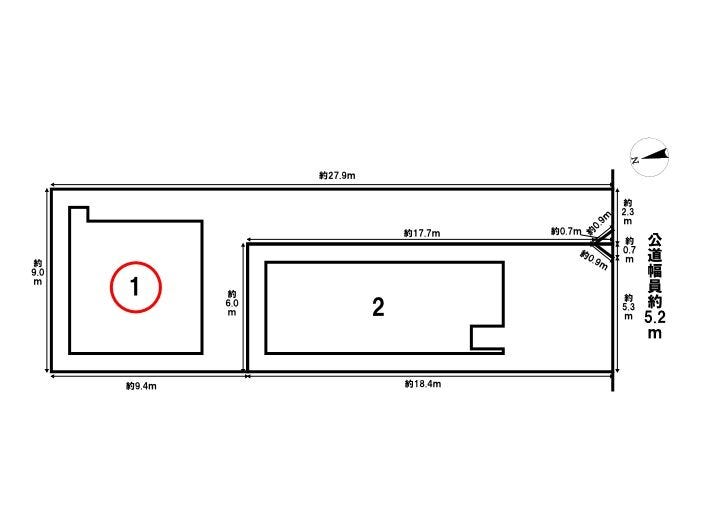
| 土地面積 | 実141.7㎡(42.86坪) | 接道 | 南側(公道)幅 約5.2m 間口 約3.00m |
| 私道 | セットバック | ||
| 地目 | 宅地 | 地勢 | |
| 権利 | 所有権 |
||
| 都市計画 | 市街化区域 |
用途地域 | 1種住居 |
| 建ぺい/容積率 | 60% / 200% | 土地国土法 | |
| 許可番号 | 建築基準法 | ||
| 法令制限 | 宅地造成工事規制区域・準防火地域・31m高度地区・緑化地域・名古屋市景観条例 | ||
| 小学区 | 飯田小学校 徒歩7分 (約540m) | 中学区 | 大曽根中学校 徒歩15分 (約1170m) |
| 現況 | 建築中 | 引渡 | 期日指定:2026年10月 |
| その他費用 | |||
| 周辺環境 | 【名古屋市立飯田小学校】 徒歩7分 (約540m) 【名古屋市立大曽根中学校】 徒歩15分 (約1170m) 【第二めいほく保育園】 徒歩2分 (約110m) 【おりべ幼稚園】 徒歩8分 (約600m) 【アオキスーパー上飯田店】 徒歩4分 (約300m) 【B&Dドラッグストア 上飯田店】 徒歩4分 (約250m) 【北病院】 徒歩4分 (約320m) 【上飯田南公園】 徒歩4分 (約290m) 【セブンイレブン名古屋金田町店】 徒歩23分 (約1800m) 【名古屋上飯田郵便局】 徒歩4分 (約270m) |
||
| 備考 | |||
| 物件番号 | 4665198 | 取引態様 | 媒介 |
















担当エージェント:加藤 太朗
《平日もご案内可能です♪》
地域密着店の私達は、周辺環境、相場、
お得な住宅ローンプランなど丁寧にご案内できます。