物件の特徴
主な設備
公営水道
下水道
都市ガス
給湯
食器洗浄乾燥機
カウンターキッチン
システムキッチン
バス
オートバス
追焚機能
浴室乾燥機
浴室に窓
トイレ2箇所
室内洗濯機置場
洗髪洗面化粧台
リビング階段
モニタ付インターホン
LDK20畳以上
2面採光
全室フローリング
クローゼット
ウォークインクローゼット2箇所
床下収納
主な特徴
小学校徒歩10分以内
南側道路面す
陽当り良好
2階建
整形地
フラット35Sに対応
=========================
◇飯田小学校:徒歩約7分
◇大曽根中学校:徒歩約15分
◇アオキスーパー上飯田店:徒歩約4分
◇おりべ幼稚園:徒歩約8分
◇名古屋上飯田郵便局:徒歩約4分
◆コミュニケーションの取れるリビングイン階段を採用
◆2階に4部屋◎家族それぞれのプライベートスペース
◆主寝室は9.2帖+WIC
=========================
\見るだけ聞くだけOK/
資金効率が良くなるローンの組み方教えます。
ネット未公開、水面下情報多数あります。
ほかのページで気になる物件もご相談ください。
物件概要
| 価格 | 5,199万円 | 間取り | 4LDK |
|---|---|---|---|
| 物件種別 | 新築一戸建て | ||
| 所在地 | 愛知県名古屋市北区上飯田南町2丁目 2号棟 | ||
| アクセス | 名古屋市上飯田線『上飯田』 徒歩6分 (約480m) 名古屋市上飯田線『上飯田』 徒歩6分 (約480m) 名古屋市営バス『「上飯田」停』 徒歩3分 (約172m) |
||
| 建物面積 | 106.65㎡ | 駐車場 | あり 普通:2台 |
| 築年月 | 2026年(令和8年)10月予定 | 建築確認 | 第KS126-0420-53822号 |
| 建物構造 | 木造 2階建 | 工法 | |
| 主要採光 | バルコニー | ||
| 保証・評価 | |||
| 分譲情報 | |||
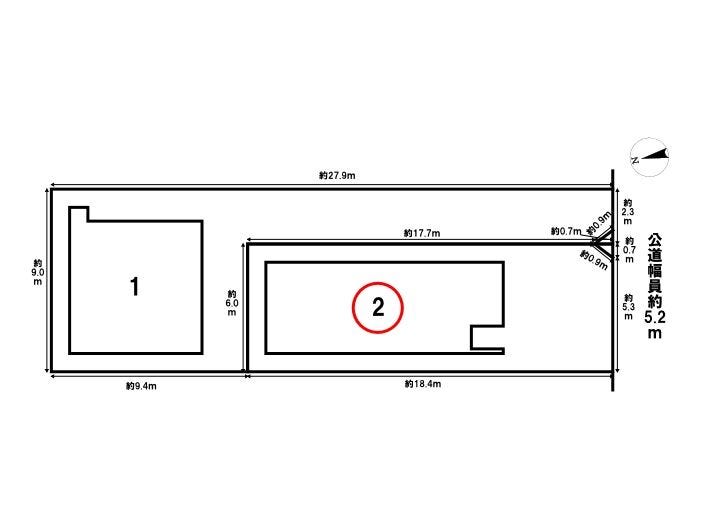
| 土地面積 | 実111.59㎡(33.75坪) | 接道 | 南側(公道)幅 約5.2m 間口 約6.00m |
| 私道 | セットバック | ||
| 地目 | 宅地 | 地勢 | |
| 権利 | 所有権 |
||
| 都市計画 | 市街化区域 |
用途地域 | 1種住居 |
| 建ぺい/容積率 | 60% / 200% | 土地国土法 | |
| 許可番号 | 建築基準法 | ||
| 法令制限 | 宅地造成工事規制区域・準防火地域・31m高度地区・名古屋市景観条例・緑化地域 | ||
| 小学区 | 飯田小学校 徒歩7分 (約540m) | 中学区 | 大曽根中学校 徒歩15分 (約1170m) |
| 現況 | 建築中 | 引渡 | 期日指定:2026年10月 |
| その他費用 | |||
| 周辺環境 | 【名古屋市立飯田小学校】 徒歩7分 (約540m) 【名古屋市立大曽根中学校】 徒歩15分 (約1170m) 【第二めいほく保育園】 徒歩2分 (約110m) 【おりべ幼稚園】 徒歩8分 (約600m) 【アオキスーパー上飯田店】 徒歩4分 (約300m) 【B&Dドラッグストア 上飯田店】 徒歩4分 (約250m) 【北病院】 徒歩4分 (約320m) 【上飯田南公園】 徒歩4分 (約290m) 【セブンイレブン名古屋金田町店】 徒歩23分 (約1800m) 【名古屋上飯田郵便局】 徒歩4分 (約270m) |
||
| 備考 | |||
| 物件番号 | 4665298 | 取引態様 | 媒介 |















担当エージェント:加藤 太朗
《平日もご案内可能です♪》
地域密着店の私達は、周辺環境、相場、
お得な住宅ローンプランなど丁寧にご案内できます。